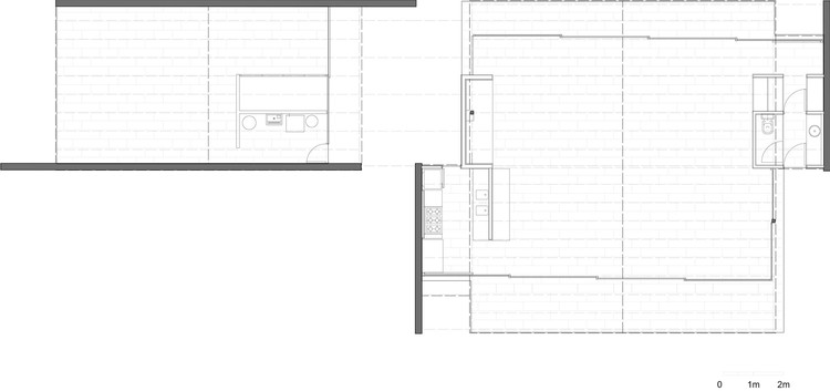
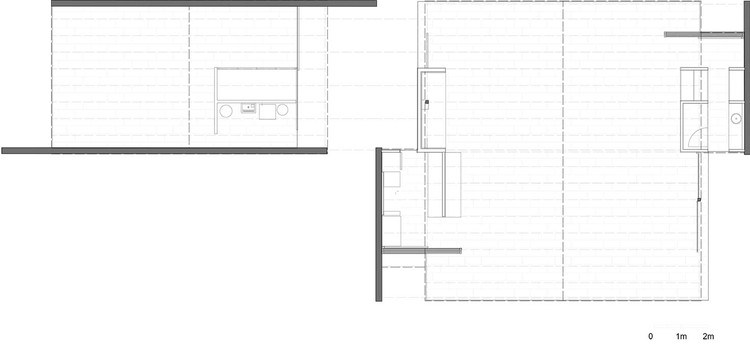
Quincho los Gauchos / Francisco Cadau Oficina de Arquitectura

  • Architects

    Francisco Cadau Oficina de Arquitectura

  • Location

    Campana, Argentina

  • Category

    Extension

  • Architect in Charge

    Francisco Cadau

  • Design Team

    Victoria Della Chiesa, Xavier Alvarez, Andres Milos

  • Area

    174.0 m2

  • Project Year

    2016

























Подпишитесь на
Estatemag

Получайте ценную информацию о стратегии, культуре и бренде прямо в свой почтовый ящик.


    Подписываясь на получение электронных писем от Motto, вы соглашаетесь с нашей Политикой конфиденциальности. Мы ответственно относимся к вашей информации. Откажитесь от подписки в любое время.