Reconstruction of Apartment in Makedonska Street / Riste Dobrijevic

  • Architects

    Riste Dobrijevic

  • Location

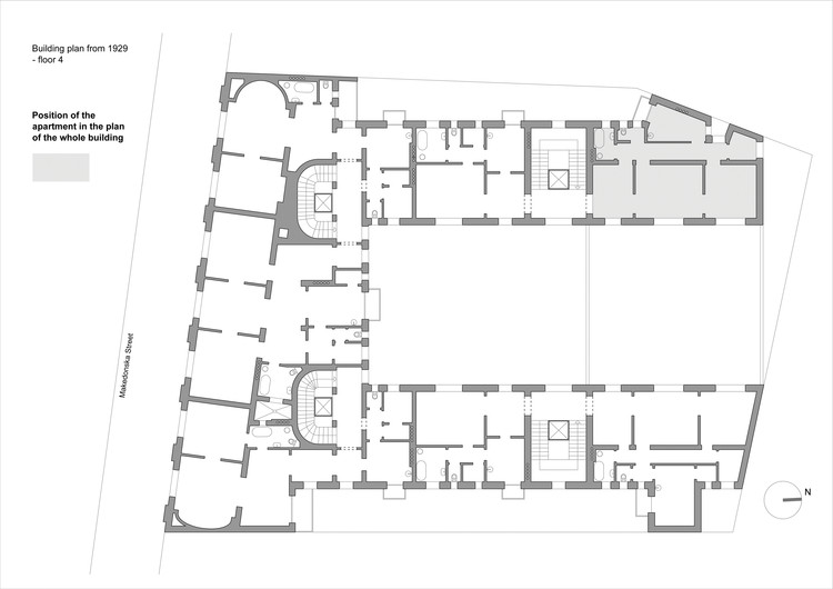
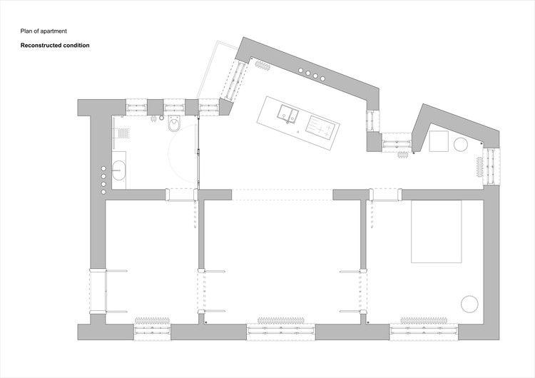
    Makedonska 21, Beograd, Serbia

  • Category

    Refurbishment

  • Clients

    Ross Bull

  • Area

    80.0 m2

  • Project Year

    2018

  • Photographs

    Relja Ivanic























Подпишитесь на
Estatemag

Получайте ценную информацию о стратегии, культуре и бренде прямо в свой почтовый ящик.


    Подписываясь на получение электронных писем от Motto, вы соглашаетесь с нашей Политикой конфиденциальности. Мы ответственно относимся к вашей информации. Откажитесь от подписки в любое время.