Refurbishment Assessoria Xavier Masdeu / nn yet

  • Architects

    nn yet

  • Location

    Avinguda Diagonal 410, Escala Esquerra. 7e, 1a, Barcelona, Spain

  • Category

    Offices Interiors

  • Architects in Charge

    Anna Castella y Daniel Munoz

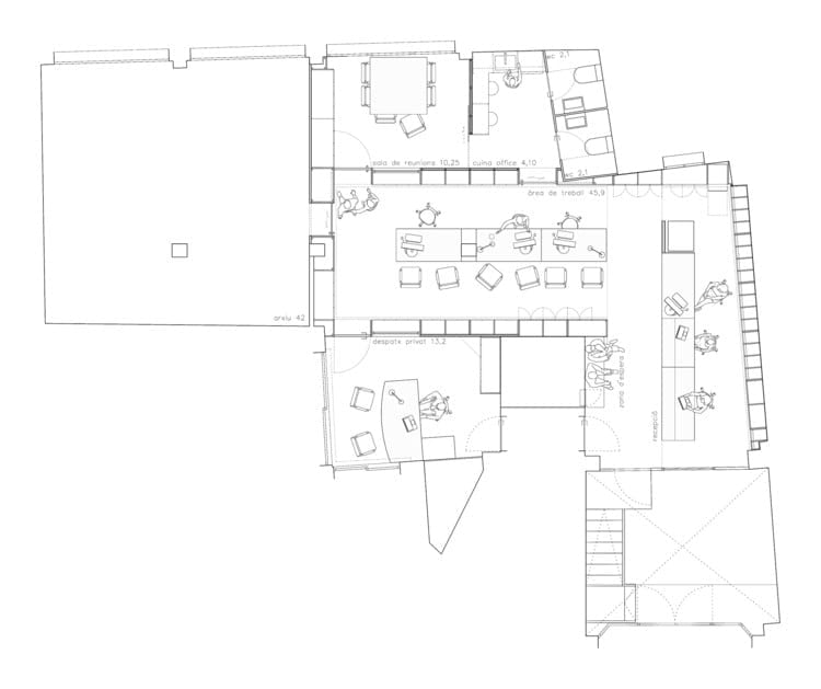
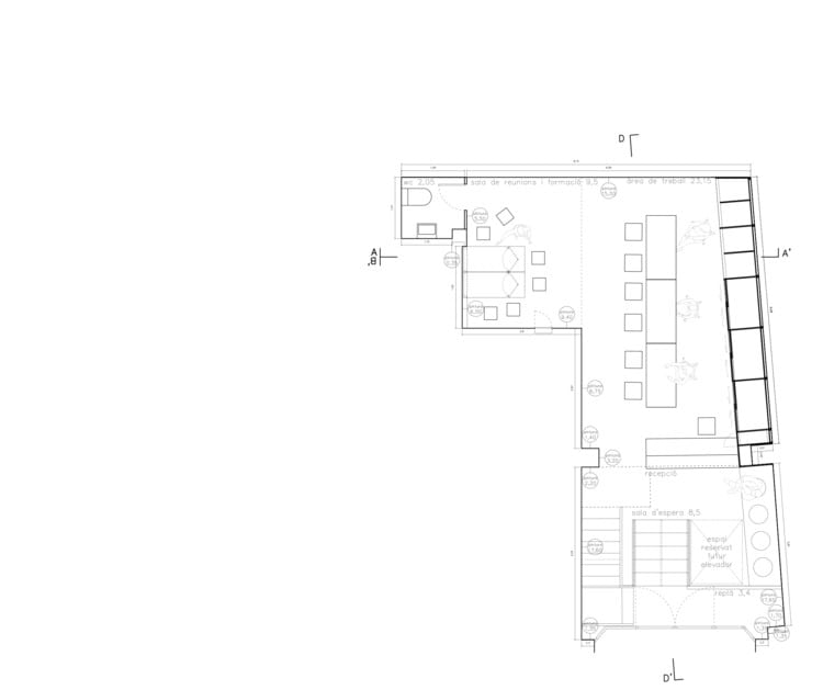
  • Area

    180.0 m2

  • Project Year

    2017

  • Photographs

    Alba Rodriguez Nunez, Anna Castella












Подпишитесь на
Estatemag

Получайте ценную информацию о стратегии, культуре и бренде прямо в свой почтовый ящик.


    Подписываясь на получение электронных писем от Motto, вы соглашаетесь с нашей Политикой конфиденциальности. Мы ответственно относимся к вашей информации. Откажитесь от подписки в любое время.