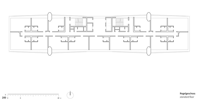
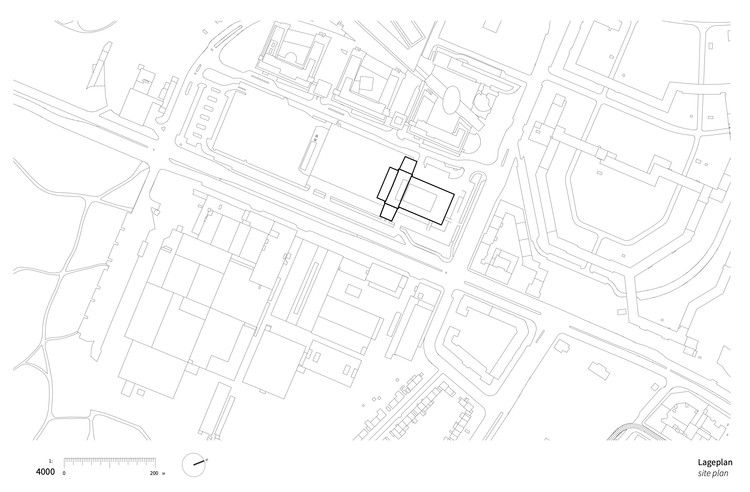
Refurbishment Philips-Haus / Josef Weichenberger architects + Partner

  • Architects

    Josef Weichenberger architects + Partner

  • Location

    Triester Str. 64, 1100 Wien, Austria

  • Category

    Refurbishment

  • Design Team

    Robert Huebser (project supervision), Mark Steinmetz (project supervision), Raphaela Bauer, Manuel Fasch, Stefan Fussenegger, Araceli Garzia Sanchez, Clemens Gurtner, Zrinka Lovrekovic, Sandy Panek, Giacomo Rocco, Riccardo Rotelli, Stefan Schubert, Andreas Schuchnigg, Dagmar Schultes, Alice Steinmetz, Michael Strohmaier

  • Area

    15700.0 m2

  • Project Year

    2018

  • Photographs

    Leo Fellinger, moodley brand identity, Tina Herzl & Julian Mullan















Подпишитесь на
Estatemag

Получайте ценную информацию о стратегии, культуре и бренде прямо в свой почтовый ящик.


    Подписываясь на получение электронных писем от Motto, вы соглашаетесь с нашей Политикой конфиденциальности. Мы ответственно относимся к вашей информации. Откажитесь от подписки в любое время.