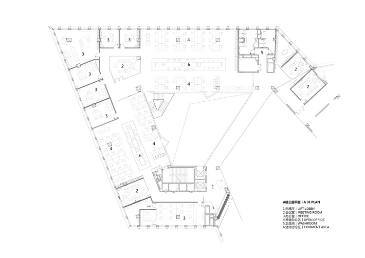
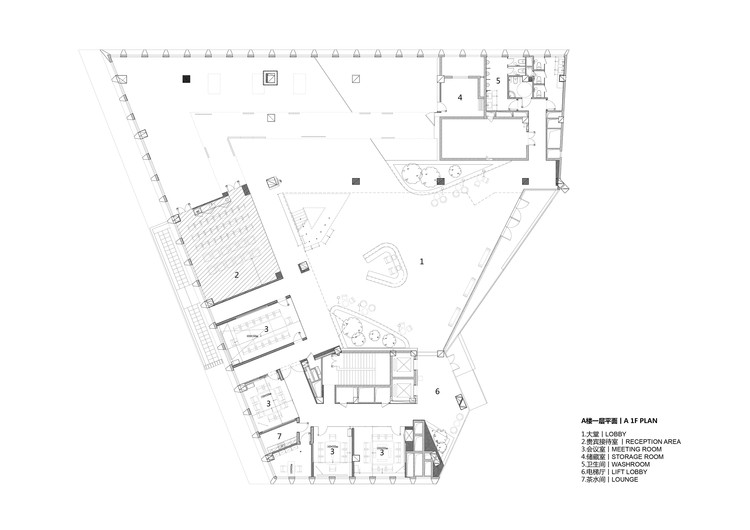
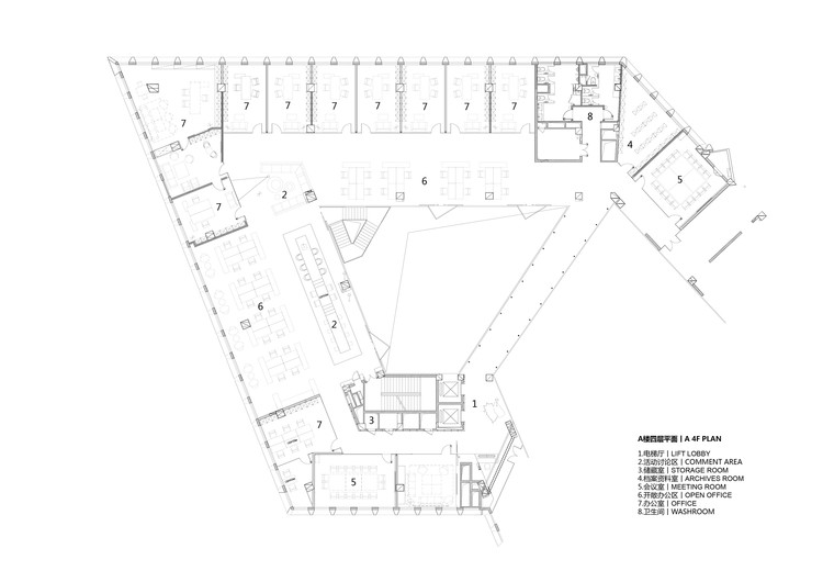
Shanghai Baoye Center Interior / LYCS Architecture

  • Architects

    LYCS Architecture

  • Location

    Bld.C,4F,Baoye Center, 388 Shenchang Road, Minhang District, Shanghai , China

  • Category

    Offices Interiors

  • Lead Architects

    LYCS Architecture

  • Design Team

    LYCS Architecture

  • Interior Design

    LYCS Architecture

  • Area

    27394.0 m2

  • Project Year

    2018

  • Photographs

    Lian He, Qingshan Wu, Baoye Group, Shengliang Su
































Подпишитесь на
Estatemag

Получайте ценную информацию о стратегии, культуре и бренде прямо в свой почтовый ящик.


    Подписываясь на получение электронных писем от Motto, вы соглашаетесь с нашей Политикой конфиденциальности. Мы ответственно относимся к вашей информации. Откажитесь от подписки в любое время.