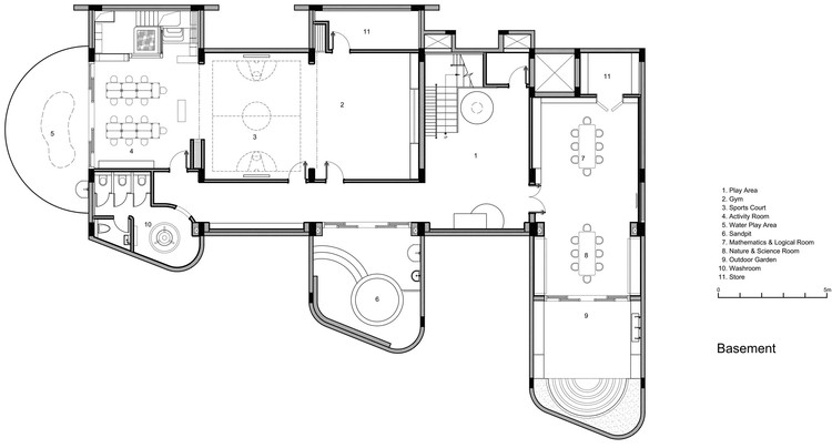
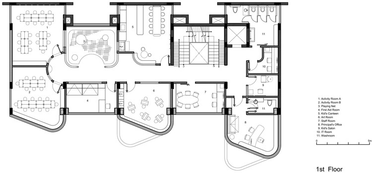
SIS PREP Gurugram / PAL Design

  • Interiors Designers

    PAL Design

  • Location

    SIS PREP Gurugram, Hamilton Court Road, Gurugram, India

  • Category

    Interior Design

  • Lead Designer

    Joey Ho

  • Design Team

    David Chan, Joslyn Lam

  • Area

    809.0 m2

  • Project Year

    2017

  • Photographs

    Suryan Dang


























Подпишитесь на
Estatemag

Получайте ценную информацию о стратегии, культуре и бренде прямо в свой почтовый ящик.


    Подписываясь на получение электронных писем от Motto, вы соглашаетесь с нашей Политикой конфиденциальности. Мы ответственно относимся к вашей информации. Откажитесь от подписки в любое время.