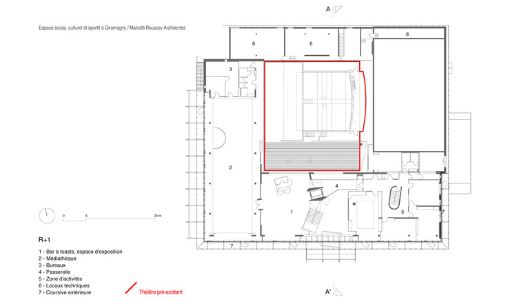
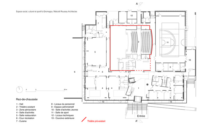
Social and Cultural Center in Giromagny / Malcotti Roussey Architectes + Thierry Gheza

  • Architects

    Malcotti Roussey Architectes, Thierry Gheza

  • Location

    Rue des Casernes, 90200 Giromagny, France

  • Category

    Cultural Architecture

  • Area

    2860.0 m2

  • Project Year

    2018

  • Photographs

    Nicolas Waltefaugle






























Подпишитесь на
Estatemag

Получайте ценную информацию о стратегии, культуре и бренде прямо в свой почтовый ящик.


    Подписываясь на получение электронных писем от Motto, вы соглашаетесь с нашей Политикой конфиденциальности. Мы ответственно относимся к вашей информации. Откажитесь от подписки в любое время.