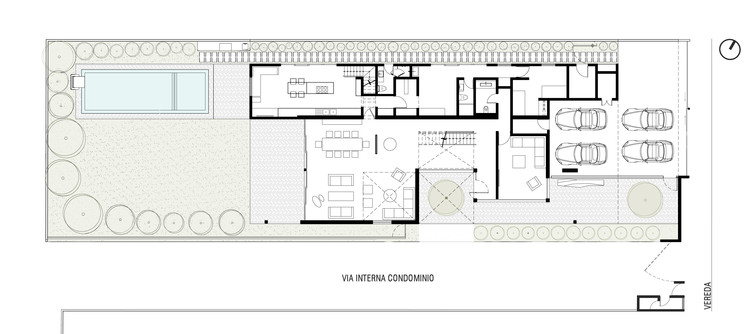
Subtracted House / Seinfeld Arquitectos

  • Architects

    Seinfeld Arquitectos

  • Location

    Lima, Peru

  • Category

    Houses

  • Architect in Charge

    Cynthia Seinfeld

  • Area

    836.52 m2

  • Project Year

    2015

  • Photographs

    Juan Solano Ojasi , Lolo Lamas

























Подпишитесь на
Estatemag

Получайте ценную информацию о стратегии, культуре и бренде прямо в свой почтовый ящик.


    Подписываясь на получение электронных писем от Motto, вы соглашаетесь с нашей Политикой конфиденциальности. Мы ответственно относимся к вашей информации. Откажитесь от подписки в любое время.