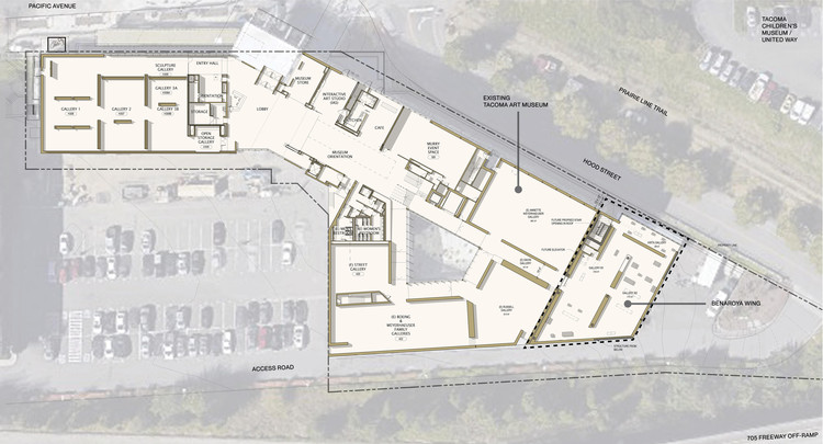
Tacoma Art Museum Benaroya Wing / Olson Kundig

  • Architects

    Olson Kundig

  • Location

    Tacoma, Washington, United States

  • Category

    Museum

  • Lead Architects

    Tom Kundig, FAIA, RIBA, Design Principal; Kirsten R. Murray, FAIA, Principal; Kimberly Shoemake-Medlock, Project Manager; Thomas Brown, LEED® AP, Project Manager; Brian Walters, LEED® AP, Laura Bartunek, Rehanna Rojiani, Architectural Staff; Vikram Sami, AIA, BEMP, LEED® AP BD+C, Building Performance; Michelle Arab, ASLA, Landscape Architecture

  • Area

    6595.0 m2

  • Project Year

    2019

  • Photographs

    Benjamin Benschneider



















Подпишитесь на
Estatemag

Получайте ценную информацию о стратегии, культуре и бренде прямо в свой почтовый ящик.


    Подписываясь на получение электронных писем от Motto, вы соглашаетесь с нашей Политикой конфиденциальности. Мы ответственно относимся к вашей информации. Откажитесь от подписки в любое время.