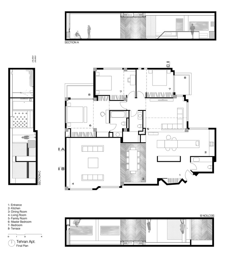
Tehran Apartment / Rooydaad Architects

  • Architects

    Rooydaad Architects

  • Location

    Elahiyeh, Tehran, Tehran Province, Iran

  • Category

    Apartment Interiors

  • Lead Architects

    Zahra Armand, Mostafa Omidbakhsh

  • Design Team

    Mahsa SheikhAkbari

  • Area

    220.0 m2

  • Project Year

    2015

  • Photographs

    Arash Ashornia






























Подпишитесь на
Estatemag

Получайте ценную информацию о стратегии, культуре и бренде прямо в свой почтовый ящик.


    Подписываясь на получение электронных писем от Motto, вы соглашаетесь с нашей Политикой конфиденциальности. Мы ответственно относимся к вашей информации. Откажитесь от подписки в любое время.