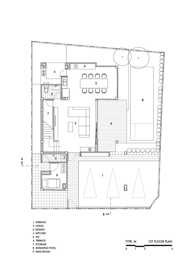
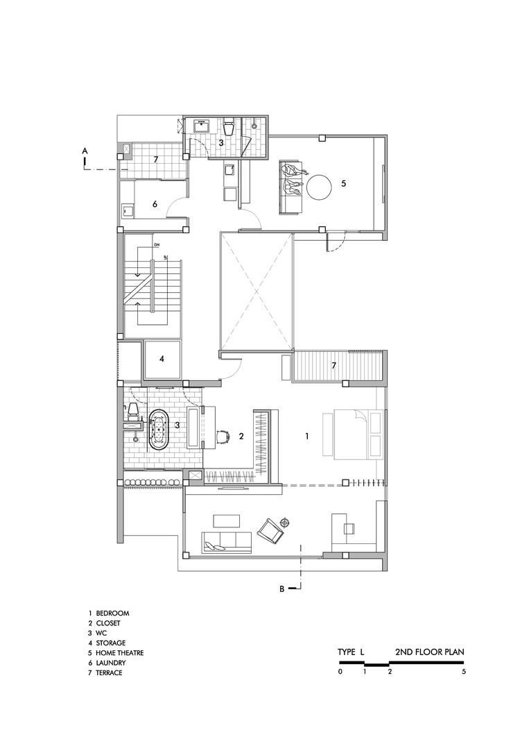
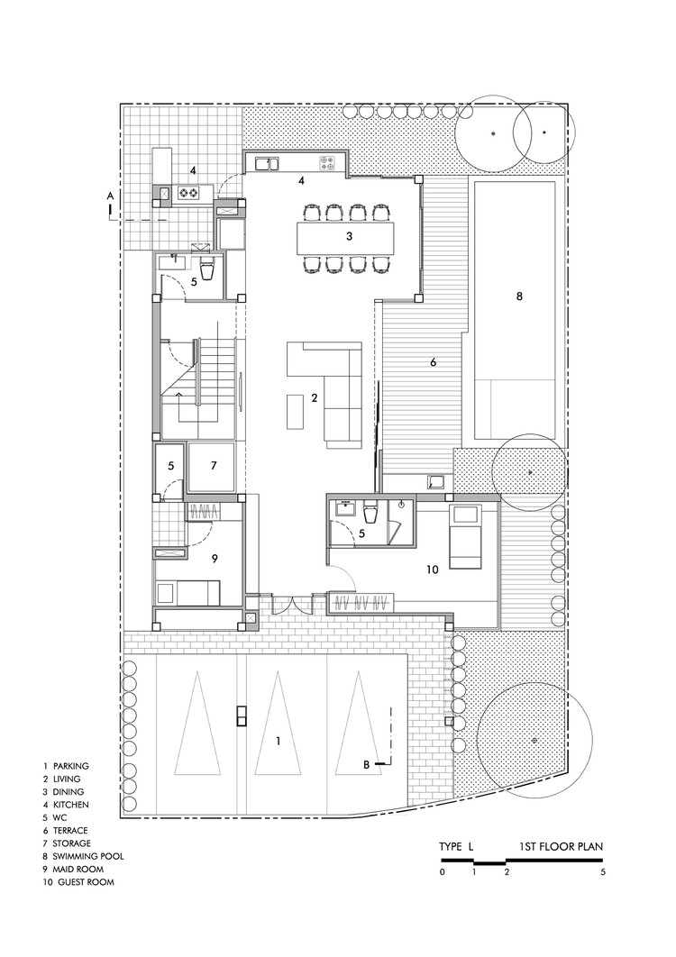
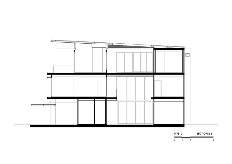
The Honor Residence / PODesign

  • Architects

    PODesign

  • Location

    Bangkok, Thailand

  • Category

    Houses

  • Area

    5400.0 sqm

  • Project Year

    2016

  • Photographs

    beersingnoi































Подпишитесь на
Estatemag

Получайте ценную информацию о стратегии, культуре и бренде прямо в свой почтовый ящик.


    Подписываясь на получение электронных писем от Motto, вы соглашаетесь с нашей Политикой конфиденциальности. Мы ответственно относимся к вашей информации. Откажитесь от подписки в любое время.