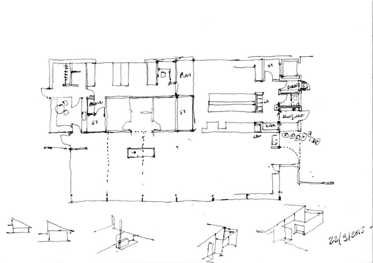
The Lookout / Hampshire County Council Property Services

  • Architects

    Hampshire County Council Property Services

  • Location

    Lepe Country Park, 1 Coastguard Cottages, Exbury, Southampton SO45 1AD, United Kingdom

  • Category

    Restaurant

  • Area

    355.0 m2

  • Project Year

    2018

  • Photographs

    Jim Stephenson
















Подпишитесь на
Estatemag

Получайте ценную информацию о стратегии, культуре и бренде прямо в свой почтовый ящик.


    Подписываясь на получение электронных писем от Motto, вы соглашаетесь с нашей Политикой конфиденциальности. Мы ответственно относимся к вашей информации. Откажитесь от подписки в любое время.