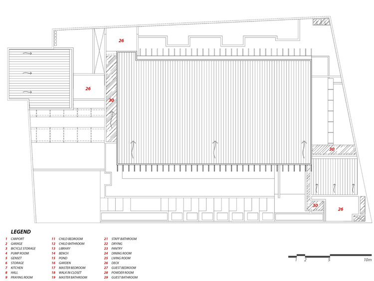
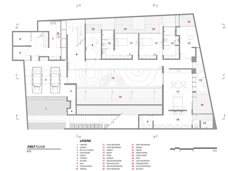
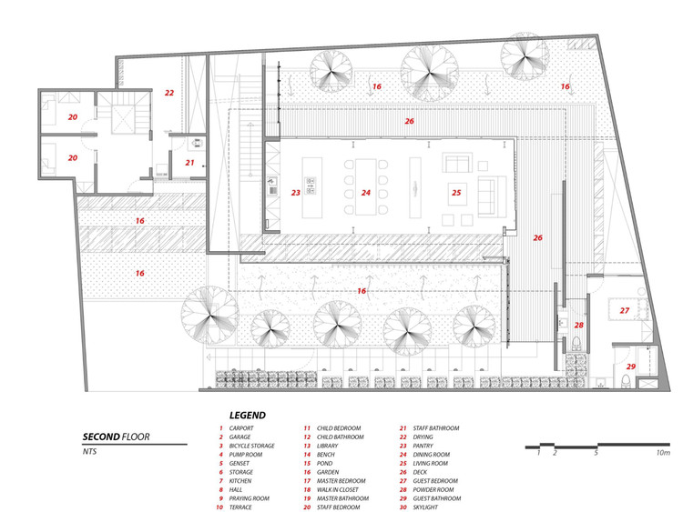
The Upstairs House / Wahana Architects

  • Architects

    Wahana Architects

  • Location

    Yakarta, Indonesia

  • Category

    Houses

  • Lead Architects

    Rudy Kelana

  • Project Team

    Shella Vitayala

  • Area

    680.0 m2

  • Project Year

    2016

  • Photographs

    Fernando Gomulya



















Подпишитесь на
Estatemag

Получайте ценную информацию о стратегии, культуре и бренде прямо в свой почтовый ящик.


    Подписываясь на получение электронных писем от Motto, вы соглашаетесь с нашей Политикой конфиденциальности. Мы ответственно относимся к вашей информации. Откажитесь от подписки в любое время.