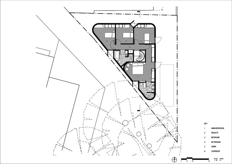
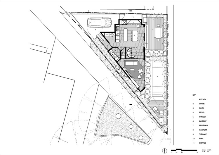
Triangle House / Molecule Studio

  • Architects

    Molecule Studio

  • Location

    Toorak, Australia

  • Category

    Houses

  • Lead Architects

    Molecule Studio – Richard Fleming & Anja de Spa

  • Area

    175.0 m2

  • Project Year

    2017

  • Photographs

    Derek Swalwell






































Подпишитесь на
Estatemag

Получайте ценную информацию о стратегии, культуре и бренде прямо в свой почтовый ящик.


    Подписываясь на получение электронных писем от Motto, вы соглашаетесь с нашей Политикой конфиденциальности. Мы ответственно относимся к вашей информации. Откажитесь от подписки в любое время.