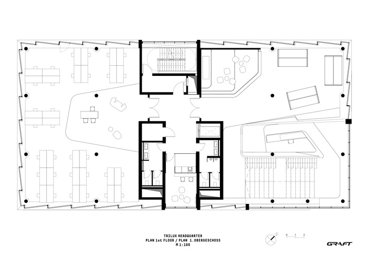
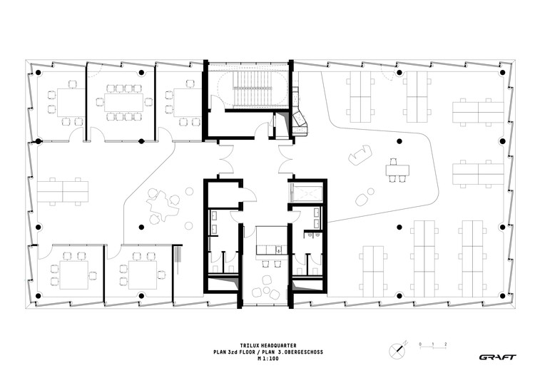
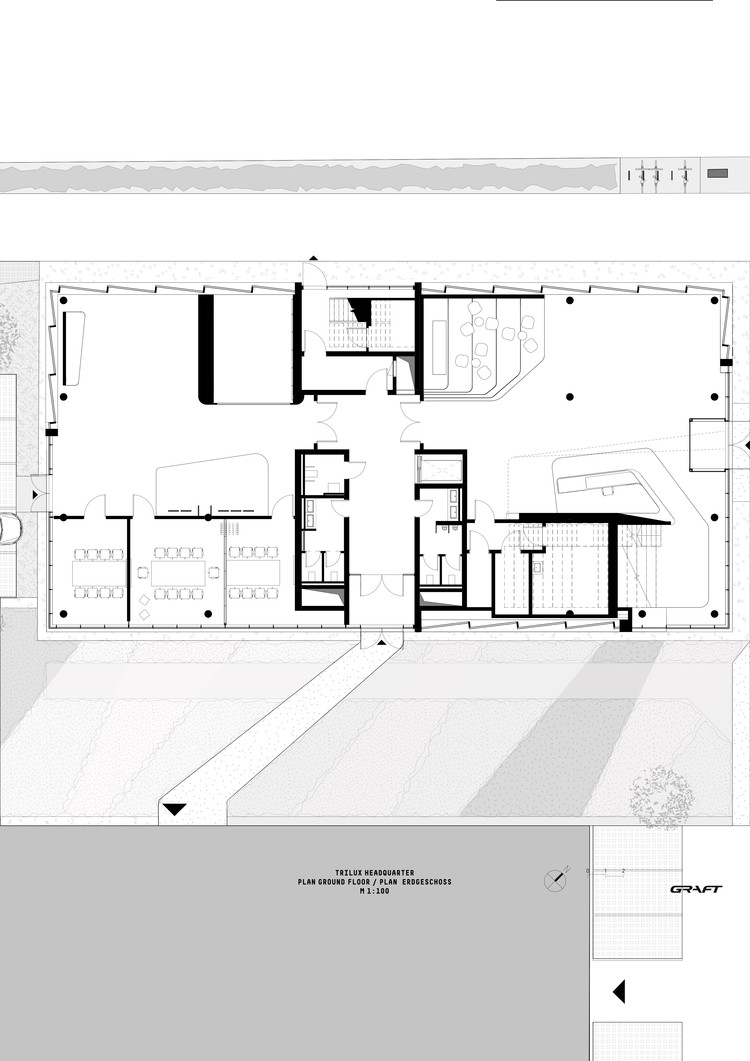
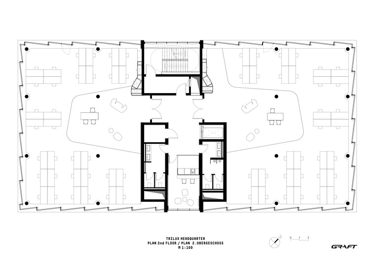
Trilux Headquarter / Graft Architects

  • Architects

    Graft Architects

  • Location

    Cologne, Germany

  • Category

    Offices Interiors

  • Lead Architects

    Allison Weiler, Sven Fuchs

  • Project team

    Marvin Bratke, Sebastian Gernhardt, Sara Gomez, Agata Glubiak, Thomas Grabner, Sasha Kruckeberg, Yue Xiao

  • Area

    2794.0 m2

  • Project Year

    2019

  • Photographs

    Trilux





























Подпишитесь на
Estatemag

Получайте ценную информацию о стратегии, культуре и бренде прямо в свой почтовый ящик.


    Подписываясь на получение электронных писем от Motto, вы соглашаетесь с нашей Политикой конфиденциальности. Мы ответственно относимся к вашей информации. Откажитесь от подписки в любое время.