Urbanity / aflalo/gasperini arquitetos

  • Architects

    aflalo/gasperini arquitetos

  • Location

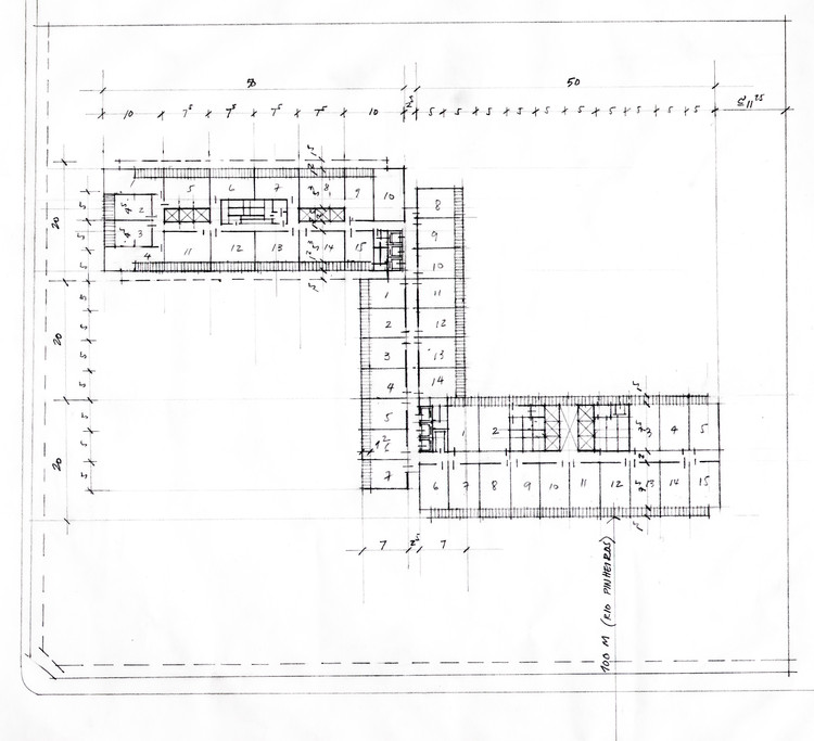
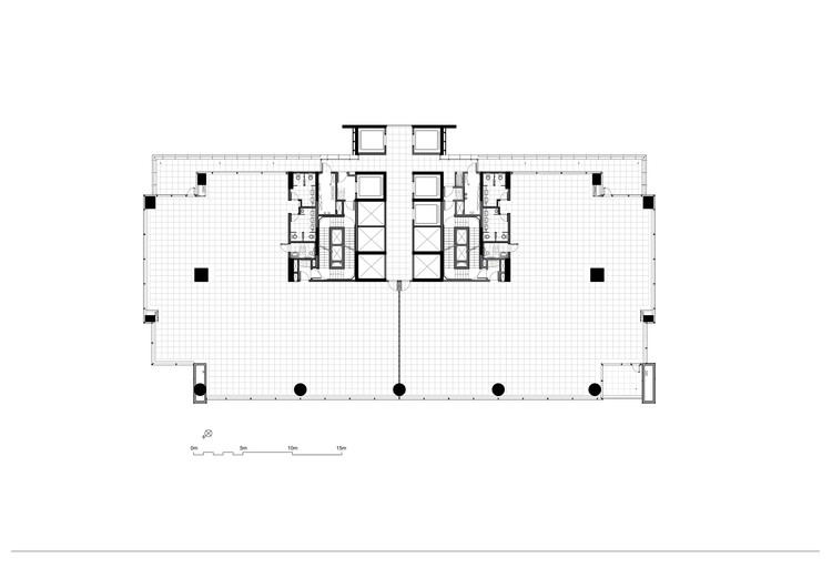
    Marginal Pinheiros, Sao Paulo, SP, Brazil

  • Category

    Residential

  • Directors

    Luis Felipe Aflalo, Roberto Aflalo, Grazzieli Gomes e Jose Luiz Lemos

  • Project Team

    Mariana Ginesi, Bruno Taiar,Beatriz Baffi, Ana Carolina Aipp, George Ferreira, Renata Lopes, Paulo Massao, Daniel Doatti, Eduardo Mizuka, Reginaldo Okusako, Daniela Mungai, Juliana Baldocchi, Marcelo Nagai, Reinaldo Sigueta e Raquel Rodrigo

  • Area

    95402.0 m2

  • Project Year

    2017

  • Photographs

    Ana Mello





















Подпишитесь на
Estatemag

Получайте ценную информацию о стратегии, культуре и бренде прямо в свой почтовый ящик.


    Подписываясь на получение электронных писем от Motto, вы соглашаетесь с нашей Политикой конфиденциальности. Мы ответственно относимся к вашей информации. Откажитесь от подписки в любое время.