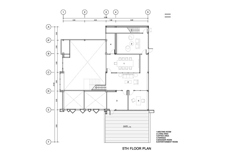
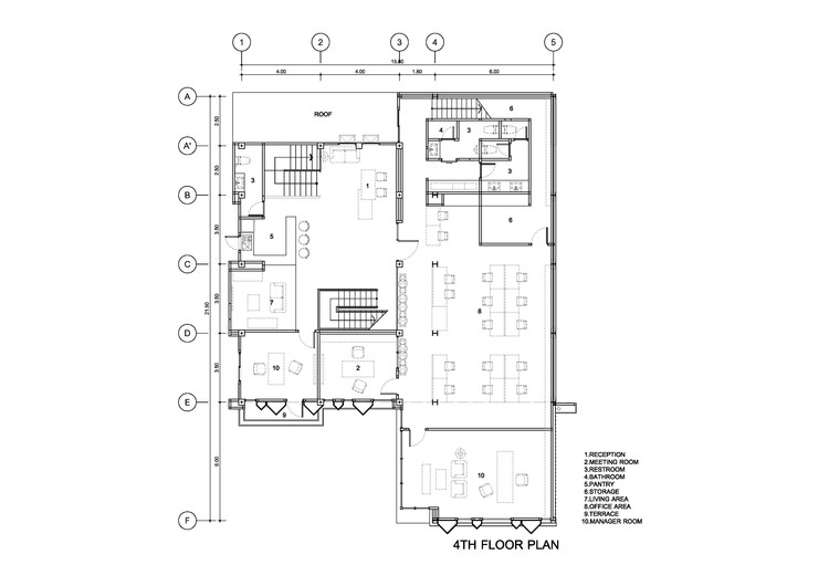
V-Office / Scaleup Architects

  • Architects

    Scaleup Architects

  • Location

    Town In Town Soi 2, Khwaeng Phlabphla, Khet Wang Thonglang, Krung Thep Maha Nakhon 10312, Thailand

  • Category

    Office Buildings

  • Architect in Charge

    Scaleup Architects

  • Area

    1321.0 sqm

  • Project Year

    2015

  • Photographs

    Jirayu Sornnuwat
















Подпишитесь на
Estatemag

Получайте ценную информацию о стратегии, культуре и бренде прямо в свой почтовый ящик.


    Подписываясь на получение электронных писем от Motto, вы соглашаетесь с нашей Политикой конфиденциальности. Мы ответственно относимся к вашей информации. Откажитесь от подписки в любое время.