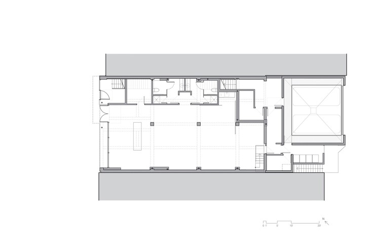
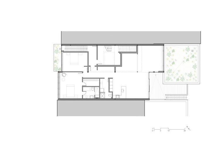
Van Horne / Paul Bernier Architecte

  • Architects

    Paul Bernier Architecte

  • Location

    Montreal, Quebec, Canada

  • Category

    Residential

  • Lead architect

    Paul Bernier

  • Design Team

    Alexandre Bernier

  • Area

    632.0 m2

  • Project Year

    2018

  • Photographs

    Adrien Williams



















Подпишитесь на
Estatemag

Получайте ценную информацию о стратегии, культуре и бренде прямо в свой почтовый ящик.


    Подписываясь на получение электронных писем от Motto, вы соглашаетесь с нашей Политикой конфиденциальности. Мы ответственно относимся к вашей информации. Откажитесь от подписки в любое время.