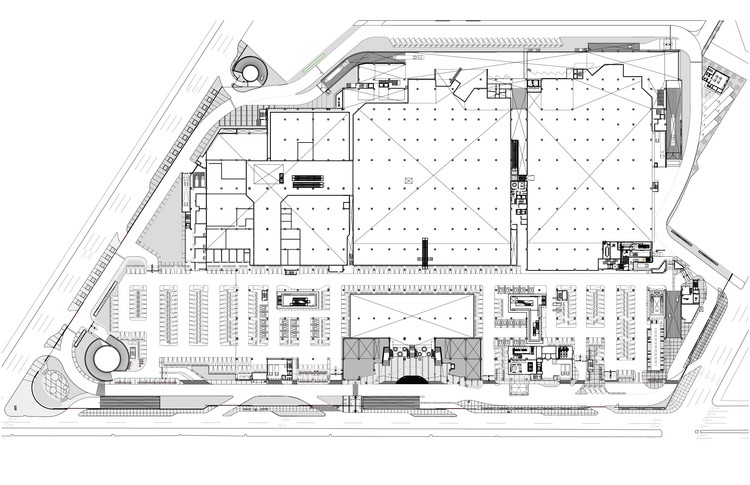
Via Vallejo / Grow arquitectos

  • Architects

    Grow arquitectos

  • Location

    Mexico City, CDMX, Mexico

  • Category

    Commercial Architecture

  • Area

    200000.0 m2

  • Project Year

    2016

  • Photographs

    Marcos Betanzos


















Подпишитесь на
Estatemag

Получайте ценную информацию о стратегии, культуре и бренде прямо в свой почтовый ящик.


    Подписываясь на получение электронных писем от Motto, вы соглашаетесь с нашей Политикой конфиденциальности. Мы ответственно относимся к вашей информации. Откажитесь от подписки в любое время.