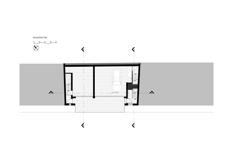
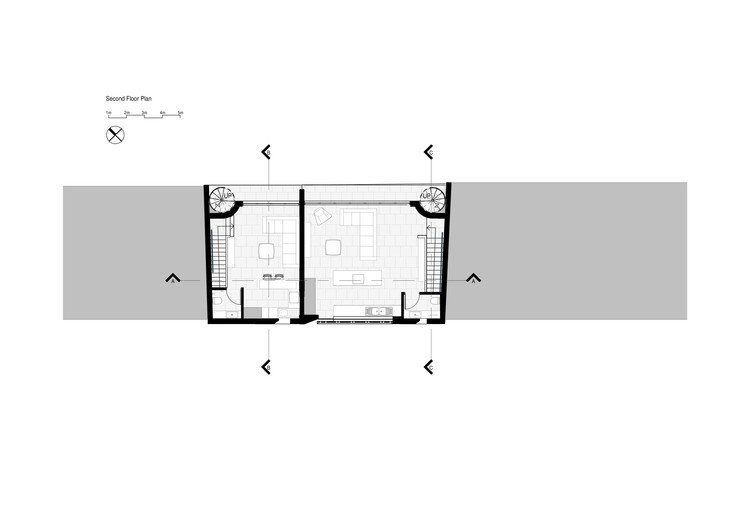
Waterkant Townhouse / GSQUARED

  • Architects

    GSQUARED

  • Location

    Ciudad del Cabo, South Africa

  • Category

    Houses

  • Lead Architects

    Renato Graca, Francois Du Plessis

  • Interior Design

    GSQUARED

  • Contractor

    Pinnacle

  • Area

    3939.5 ft2

  • Project Year

    2018

  • Photographs

    Niel Vosloo























Подпишитесь на
Estatemag

Получайте ценную информацию о стратегии, культуре и бренде прямо в свой почтовый ящик.


    Подписываясь на получение электронных писем от Motto, вы соглашаетесь с нашей Политикой конфиденциальности. Мы ответственно относимся к вашей информации. Откажитесь от подписки в любое время.